Routing

Functionaliteit

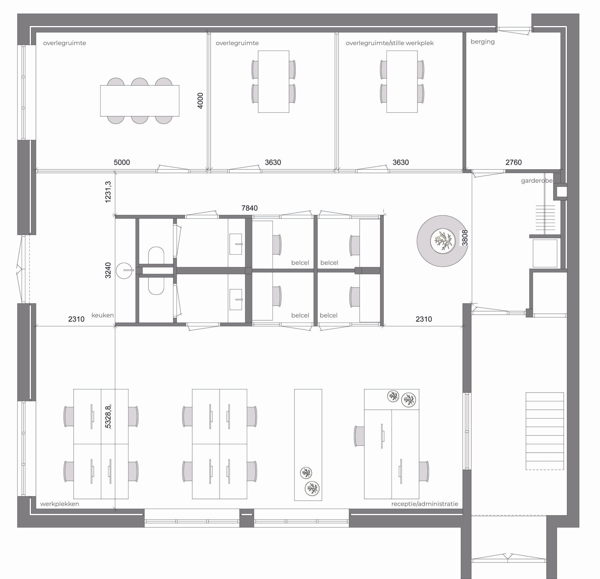
Over dit project

Wat als je gevoel voor kleur en stijl heb en ook nog eens alle bouwtechnische kennis in huis hebt. Dan schakel je niet de hulp in van een interieurarchitect, toch?


Remko Labee van ProcessMinded dacht daar anders over en gaf mij de opdracht om een indelingsplan te maken voor hun kantoorpand van 3 verdiepingen. Samen bespraken we de wensen en Remko gaf mij alle ruimte om een passend ontwerp te maken. Een goede basis qua routing en functies is essentieel en uiteraard super dat ik hierbij kon helpen. De technische uitwerking, materialisatie en kleurkeuze dat hebben Remko en zijn team helemaal zelf gedaan en wat een prachtig resultaat!

Plattegronden

foto 1 was het vetrekpunt